Skip to content
info@ktmmodulars.com
+1 603 231 1677
About Us
Modular Home Plans
Our Work
Services
Modular Homes
Garage And Additions
General Contracting Service
RESOURCES
Blog
Contact Us
About Us
Modular Home Plans
Our Work
Services
Modular Homes
Garage And Additions
General Contracting Service
RESOURCES
Blog
Contact Us
Call Us Today
Facebook
Instagram
Google
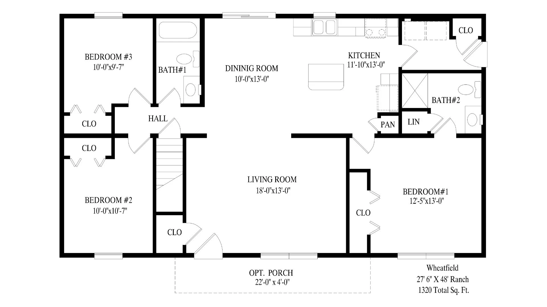
Wheatfield
View More
Wheatfield
Additional Customizations
Floor Plan
View Gallery
Wheatfield
×
Bedrooms
3
Bathrooms
2
Garage
SQ.FT.
1320
John Smith
Have questions?
Contact our Realtor Partner
Your Home. Your Future.
Let’s Build It Together.
Tell us what matters most. We’ll help shape a plan that works for your family, your timeline, and your future. When you’re ready, we’re ready.
Get Your Free Consultation Today
Give us a call