Brookville

Additional Customizations

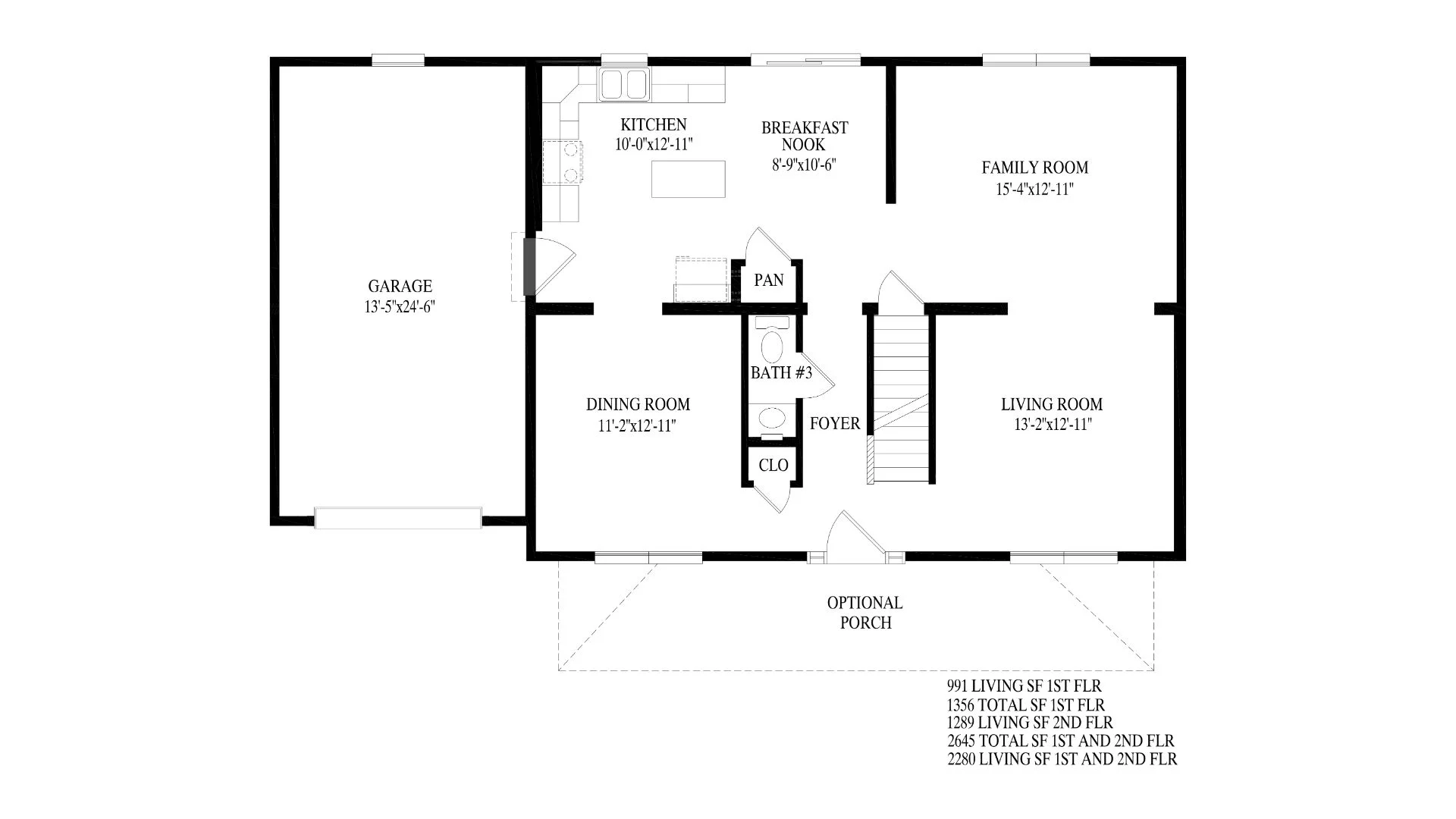
Floor Plan

Bedrooms

3

Bathrooms

3

Garage

SQ.FT.

2280

John Smith

Have questions?

Contact our Realtor Partner

Your Home. Your Future.
Let’s Build It Together.

Tell us what matters most. We’ll help shape a plan that works for your family, your timeline, and your future. When you’re ready, we’re ready.